Экран-отражатель для кондиционера – защитная накладка на внутренний блок, чтобы не дуло вниз
Устройства климат-контроля - прекрасное изобретение, которое позволяет создать оптимальный температурный режим в помещении. Но, каждому обладателю кондиционера и сплит-системы знакомы проблемы, которые создает направленный поток холодного воздуха, своего рода сквозняк. Начиная от банального насморка и заканчивая болями в спине, простудой и выходом на больничный.
Не лучшая ситуация в частных домах и квартирах. В стремлении охладить как можно большую площадь, в них часто устанавливаются мощные кондиционеры. Естественно, непосредственно под кондиционером находится опасно для здоровья, особенно детям и пенсионерам.
Парадокс в том, что возникают проблемы, благодаря устройству, назначение которого их устранять. И вместо того, чтобы продуктивно работать в прохладе, создаваемой охладительным прибором, потребитель начал думать, как сделать чтобы кондиционер не дул вниз.
Что такое экран для кондиционера и для чего он нужен?
Простая логика и понимание принципов аэродинамики показывает, что решить проблему направленного потока воздуха из климатической техники можно путем изменения его движения к потолку, а уже оттуда, согласно законам физики, он опустится вниз, вытесненный более теплым воздухом помещения. Таким образом, полка под кондиционер, установленная чтобы не дуло, трансформировалась в защитный экран для кондиционера.
Отражатель или экран-дефлектор для кондиционера (именно такое его правильное название) – это отсекатель потока воздуха или просто эффективный и, весьма бюджетный способ изменить поток кондиционированного воздуха. Установленный под определенным углом к поверхности дефлектор позволяет перенаправить холодный воздух на потолок или стены и таким образом перераспределить его в помещении более рациональным образом.
Установка отражателя действенный способ борьбы с направленным холодным воздухом и обладает другими преимуществами (см. фото)
Простые и примитивные самодельные экраны для кондиционера выглядят так, как показано на фото
С точки зрения предназначения, свою функцию экраны, безусловно, выполняют. А вот эстетика, долговечность и технологичность явно хромает. Но, есть спрос – есть и предложение. Таким образом, многие производители сегодня откликнулись на требование рынка, и поставляют современные экраны из оргстекла для кондиционеров, изготовленные согласно техническим условиям и регламенту на современном оборудовании. Кстати, стоимость экрана для кондиционера варьируется в пределах 2,5-4,5 тыс. руб.
Типы и виды защитных экранов для кондиционера
Классификация, разновидности и варианты устройства
1. в зависимости от вида кондиционера:
Экран для настенного кондиционера
(для внутреннего блока)
Поскольку сплит-системы являются наиболее распространенными системами, которые применяются и дома, и в офисных помещениях, то и отражатели данного вида встречаются наиболее часто.
Несмотря на то, что многие производители изготавливают экраны только под заказ, экран для сплит-системы стандартного размера можно приобрести уже в готовом виде.
Экран для потолочного кондиционера.
Файнколы или потолочные кассетные кондиционеры также не идеально распределяют охлажденный воздух, а поэтому нуждаются в установке экранов.
Экран для кассетного кондиционера
Действует аналогично экрану для сплит-системы, направляя воздух в потолок, благодаря бортикам, загнутым кверху.
Отражатель для блоков при централизованном кондиционировании.
Материал подготовлен для сайта www.2009007.ru
2. по материалу:
Из гофрокартона (наиболее дешевый вариант экрана, выполненный из картона и подручных средств в домашних условиях) и пластика (из-за непрозрачности не всегда вписывается (сочетается) в дизайн интерьера помещения)
Из оргстекла и акрила (самый популярный материал для изготовления экранов)
Из поликарбоната и металла
3. по способу устройства (представлены на схеме)
- поворотный;
- стандартный (фиксированный);
- с направляющими.
4. по способу крепления
- крепление к стене (используются саморезы);
- крепление к кондиционеру.
5. по способу изготовления:
- кустарный;
- заводской;
- сделанный собственноручно.
Как сделать экран для кондиционера
Опираясь на опыт лидеров отрасли, каждый человек может сделать экран-отражатель для кондиционера своими руками.
Для работы понадобится:
- материал основы (пластик, оргстекло, фанера и т.п.)
- крепеж (метизы, двусторонний скотч);
- инструмент (уровень, дрель, нож или стеклорез, шуруповерт).
Порядок изготовления экрана из оргстекла:
- Снимаем замеры.
Важно! От кондиционера до экрана должно быть не меньше 350 мм.
К примеру, настенный кондиционер и размеры экрана приведены на схеме слева. Для потолочного (схема справа) нужно замерять длину и ширину.
- Подготавливаем материал основы, к примеру, оргстекло, с ним легко работать. Размер заготовки должны превышать размеры внутреннего блока на 150-200 мм.
- Делаем выкройку.
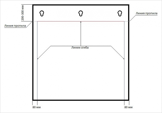
Для этого с одной стороны заготовки нужно отметить 200-300 мм. Это будущее крепление. По бокам отметить по 50-80 мм. «Крылья» нужны чтобы перенаправлять воздух из кондиционера в потолок. Образованные отрезками квадраты можно вырезать полностью или сделать пропил. Схема раскроя экрана представлена на рисунке ниже.
Чертеж экрана для кондиционера
- Изгибаем оргстекло. Для этого выкройку нужно уложить на край стола так, чтобы нужная часть свисала. Путем нагревания (например, строительным феном) выступающая часть начнет пригибаться. Нужно выгнуть до угла в 40-45о.
- Сверлим отверстия для метизов.
- Установка - крепим готовый дефлектор на стену с помощью метизов (зависит от стенового материала). Многие советуют производить монтаж с помощью двустороннего скотча, но такой крепеж ненадежен (подойдет только для бумажного отражателя), конструкция экрана из стекла может просто отвалиться.
Экран для потолочного кондиционера изготавливается по тому же принципу, только сгибать нужно все 4 стороны выкройки, а крепить к потолку.
Дизайн экрана для кондиционера
Делать экран-отражатель для сплит-системы лучше всего из прозрачного материала. Он органично вписывается в любой интерьер. Однако, чтобы придать экрану индивидуальность можно наклеить на него пленку с изображением. Декоративный экран для кондиционера может внести изюминку в общий декор помещения. Интересным штрихом будет дополнительная светодиодная подсветка, которая может превратить экран в светильник.

Заключение
Как видим, никаких сложностей с изготовлением экрана для кондиционера своими руками не возникает. Как нет необходимости в дорогостоящем материале или специальном инструменте. Главное, что при минимальных затратах результат будет просто отличным, а сделанный собственноручно экран ничем не будет отличаться от заводских аналогов.
Метки: Кондиционер Вентиляция
31 054
0
-
Строительство дома из арболита (арболитовых блоков) – технология возведения, от фундамента до крыши
Такая ситуация, мне начали строить дом из арболита, но наделали кучу ошибок по кладке (ниже фото). Сейчас хочу взыскать с этих криворуких строителей компенсацию. По самому материалу претензий нет, -
Утепление входной металлической двери – правильная теплоизоляция своими руками
Бюджетный способ утеплить китайскую дверь от дяди Вани. В отличие от обычной пустотелой двери, в китайской хотя бы бумага внутри. Конечно, эти соты из прессованного картона мало помогут в мороз, но -
Входные двери с терморазрывом – металлические термодвери для частного дома
Установил термодверь в декабре 2015 года. До этого стояла стальная дверь, утепленная внутри полотна и по периметру. Температура в коридоре была ниже, нежели в комнатах (коридор отапливаемый). После -
Монтаж водосточной системы своими руками – установка водостоков для крыши
Пытались помочь в рамках своей компетенции.Раз уж комплектующие Деке, то разумно будет согласовать эти вопросы с ними.Да, в скором будущем на сайте будет отдельный материал по расчетам водосточной -
Монтаж водосточной системы своими руками – установка водостоков для крыши
У Docke эти странные требования заложены в pdf инструкцию по монтажу водосточной системы. Формулу я вывел сам, это не сложно, задачка в пределах школьного курса геометрии. Дело в том, что я купил их -
Монтаж водосточной системы своими руками – установка водостоков для крыши
Не уверенны, что сможем дать однозначный ответ насчет градусов. Откуда вообще эта формула, на сайте Деке не нашли. Спросили у ребят, которые профильно занимаются монтажом водостоков. Сказали, что -
Монтаж водосточной системы своими руками – установка водостоков для крыши
Интересно, что те же Дёке, несмотря на свои рекомендации, дают фотографии своих монтажных работ по крутым скатам, которые явно им противоречат (фото). Там скаты смотрят в жёлоб, а не поверх него. Моя -
Монтаж водосточной системы своими руками – установка водостоков для крыши
Спасибо за развёрнутый ответ, но он не во всём разъясняет проблему, поэтому уточню вопрос. На прилагаемых рисунках, взятых из рунета, показано то самое поперечное сечение, о котором я говорю, с -
Установка забора из сетки рабицы своими руками – пошаговая инструкция
В описанном вами случае, нужно использовать квадратный профиль с сечением не менее 100х100 мм. Ввиду того, что планируется посадка вьющихся растений желательно устанавливать одинаковый профиль по -
Как сделать калитку из сетки рабицы для дачи своими руками
Выбирается индивидуально, но согласно логике, распашная калитка и ворота из рабицы (как и любые другие) должны открываться наружу. Объясняется несколькими причинами. Первая – при экстренной ситуации,




































