Готовые проекты деревянных домов с мансардой для дачного и загородного строительства
Желание иногда сбежать от ритма городской жизни к природе, наверное, посещало каждого человека. Поэтому многие стараются построить дачный дом в пригороде. Чтобы жить там постоянно или приезжать по выходным, праздникам или во время отпуска.
Как показывает практика, чувство удовлетворенности от отдыха определяется не размерами и планировкой частного дома, наличием современных и технологичных приспособлений, а скорее, его духом.
Даже в маленьком домике 6х6 метров с мансардой можно создать уникальную атмосферу гармонии. Поэтому, лучше изначально закладывать идею в проект коттеджа.
Однозначно, самым близким к природе можно назвать дом, при строительстве которого использовались натуральные материалы. Строительство срубов или домов из оцилиндрованного бревна сегодня на подъеме. Что не удивительно, ведь древесина, позволяет создать в доме уникальный микроклимат и обеспечить комфортное пребывание в нем в любое время года.
А чтобы дом не занимал много места на участке и при этом соответствовал потребностям семьи, его площадь увеличивают за счет надстройки. При этом часть пользователей отдает предпочтение второму этажу, а многие обустраивают над домом мансарду. Последний вариант отличается меньшими затратами на строительство, меньшей нагрузкой на фундамент и более высокой скоростью выполнения работ. Есть и визуальный эффект, который заключается в том, что достигается иллюзия легкости всего строения.
Мансардный этаж, несмотря на наличие в нем так называемых «мертвых» зон, быстро становится любимым место для времяпрепровождения. Здесь оборудуются спальни, игровые комнаты или комнаты отдыха. Часто мансарда имеет выход на лоджию или балкон. Тогда с него можно наблюдать за закатом или просто наслаждаться тишиной и покоем.
В общем, у каждого своё видение. А продемонстрируют изящество и уникальность загородного строительства некоторые проекты деревянных домов с мансардой, которые представлены на фото.
Проект небольшого дома из бруса с мансардой 6х6 м
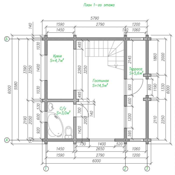
План первого и мансардного этажа
Примеры проектов деревянных домов с мансардой
Материал подготовлен для сайта www.2009007.ruСтоит отметить, что использование древесины при строительстве не накладывает никаких ограничений на проект дома. Каким бы не видел потребитель свой будущий дом, его можно построить без проблем. Конечно, можно поручить разработку проекта профессионалу, а можно, доверившись своей интуиции и изучив несколько типичных проектов создать его самостоятельно. Главное позаботится о правильном расположении инженерных коммуникаций, пожарной безопасности, а также придерживаться основных правил проектирования (соответствие ГОСТ, СНиП, положениям и т.п. регламентирующим документам).
Таким образом, грамотно спроектированный деревянный дом с мансардой, будет отвечать всем требованиям жильцов, станет для них тем самым местом, куда всегда захочется вернуться.
Метки: Проект Мансарда
18 378
0
-
Строительство дома из арболита (арболитовых блоков) – технология возведения, от фундамента до крыши
Такая ситуация, мне начали строить дом из арболита, но наделали кучу ошибок по кладке (ниже фото). Сейчас хочу взыскать с этих криворуких строителей компенсацию. По самому материалу претензий нет, -
Утепление входной металлической двери – правильная теплоизоляция своими руками
Бюджетный способ утеплить китайскую дверь от дяди Вани. В отличие от обычной пустотелой двери, в китайской хотя бы бумага внутри. Конечно, эти соты из прессованного картона мало помогут в мороз, но -
Входные двери с терморазрывом – металлические термодвери для частного дома
Установил термодверь в декабре 2015 года. До этого стояла стальная дверь, утепленная внутри полотна и по периметру. Температура в коридоре была ниже, нежели в комнатах (коридор отапливаемый). После -
Монтаж водосточной системы своими руками – установка водостоков для крыши
Пытались помочь в рамках своей компетенции.Раз уж комплектующие Деке, то разумно будет согласовать эти вопросы с ними.Да, в скором будущем на сайте будет отдельный материал по расчетам водосточной -
Монтаж водосточной системы своими руками – установка водостоков для крыши
У Docke эти странные требования заложены в pdf инструкцию по монтажу водосточной системы. Формулу я вывел сам, это не сложно, задачка в пределах школьного курса геометрии. Дело в том, что я купил их -
Монтаж водосточной системы своими руками – установка водостоков для крыши
Не уверенны, что сможем дать однозначный ответ насчет градусов. Откуда вообще эта формула, на сайте Деке не нашли. Спросили у ребят, которые профильно занимаются монтажом водостоков. Сказали, что -
Монтаж водосточной системы своими руками – установка водостоков для крыши
Интересно, что те же Дёке, несмотря на свои рекомендации, дают фотографии своих монтажных работ по крутым скатам, которые явно им противоречат (фото). Там скаты смотрят в жёлоб, а не поверх него. Моя -
Монтаж водосточной системы своими руками – установка водостоков для крыши
Спасибо за развёрнутый ответ, но он не во всём разъясняет проблему, поэтому уточню вопрос. На прилагаемых рисунках, взятых из рунета, показано то самое поперечное сечение, о котором я говорю, с -
Установка забора из сетки рабицы своими руками – пошаговая инструкция
В описанном вами случае, нужно использовать квадратный профиль с сечением не менее 100х100 мм. Ввиду того, что планируется посадка вьющихся растений желательно устанавливать одинаковый профиль по -
Как сделать калитку из сетки рабицы для дачи своими руками
Выбирается индивидуально, но согласно логике, распашная калитка и ворота из рабицы (как и любые другие) должны открываться наружу. Объясняется несколькими причинами. Первая – при экстренной ситуации,

































